Ruchira Feliz is a thoughtfully planned boutique villa community by Ruchira Projects, designed to offer a harmonious blend of modern architecture and peaceful green surroundings in East Bangalore’s rapidly growing Whitefield–Budigere Cross belt. Tailored for families who value the space, privacy, and comfort of independent homes within a secure gated environment, Feliz combines contemporary villa design with lush landscaping and serene community spaces. Spread across 10 acres, this intimate enclave features 115 premium villas, each crafted with spacious double-height living areas, private gardens, airy balconies, rooftop terraces, family lounges, and staff quarters. Wide internal roads, green parks, children’s play zones, and a calm, neighbourly atmosphere make Ruchira Feliz a desirable choice for families wanting to stay close to Whitefield’s IT hubs, international schools, hospitals, and upcoming metro access.
Ruchira Feliz
Clubhouse: Featuring a swimming pool, well-equipped gym, yoga and meditation hall, indoor games lounge, multipurpose party hall, kids’ play area, and landscaped lawns for gatherings, A Spanish-inspired hub with arched facades, tiled roofs, and open courtyards.

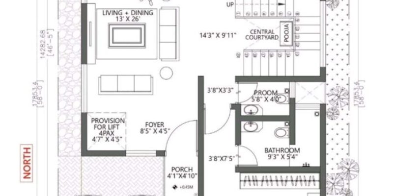
Unit Types: Premium 4 BHK villas, each with a private garden, backyard, rooftop terrace, spacious balconies, family lounge, and staff accommodation.
Project USP: A low-density community with only 115 villas on 10 acres, offering contemporary triplex designs, abundant green space, and Ruchira’s signature commitment to quality — located in the fast-growing Whitefield–Budigere corridor.
RERA ID: PRM/KA/RERA/1250/303/PR/290923/006279

































