Sobha Crystal Meadows by Sobha Limited is an ultra-luxury residential project located on Sarjapur Road, East Bangalore. Spanning 26.6 acres, this exclusive enclave features 290 meticulously crafted 4 BHK triplex and quadruplex row villas, Inspired by the iconic Crystal Palace in London, the Victorian-themed villas boast intricate stone cladding, floor-to-ceiling glass windows, private gardens, expansive terraces, and modern features like elevators and EV charging points. Nestled amidst 18 acres of open space, including an 11-acre landscaped garden and a 6-acre sensory forest, the project offers a serene retreat with seamless connectivity to Bangalore’s IT hubs, schools, and malls via Sarjapur Road, Outer Ring Road, and NH 44.
Sobha Crystal Meadows
Sobha Crystal Meadows offers world-class amenities, including two clubhouses, a swimming pool, gymnasium, multisport courts, jogging tracks, children’s play areas, a multipurpose party hall, sensory forest, estuary park, pet park, and 24×7 security with gated entry.

Unit Types
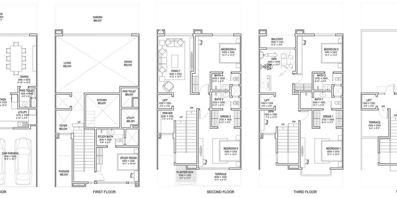
Luxury 4 BHK triplex and quadruplex row villas (~3,850–4,815 sq ft) featuring private gardens (minimum 3m depth), spacious living areas, balconies, terraces, elevators, two car parking spaces (including one EV charging point), and premium finishes like vitrified tiles and stone cladding.
Project USP
Bangalore’s first-ever Millionaires’ Row, offering Victorian-inspired, eco-conscious row villas with low-density living, sustainable features like solar panels and rainwater harvesting, and proximity to IT hubs and urban conveniences.
RERA ID
PRM/KA/RERA/1251/446/PR/280324/006733, PRM/KA/RERA/1251/446/PR/280324/006734, PRM/KA/RERA/1251/446/PR/280324/006735, PRM/KA/RERA/1251/446/PR/280324/006736, PRM/KA/RERA/1251/446/PR/280324/006737
Move-in Date
Under construction; possession expected from December 2029













